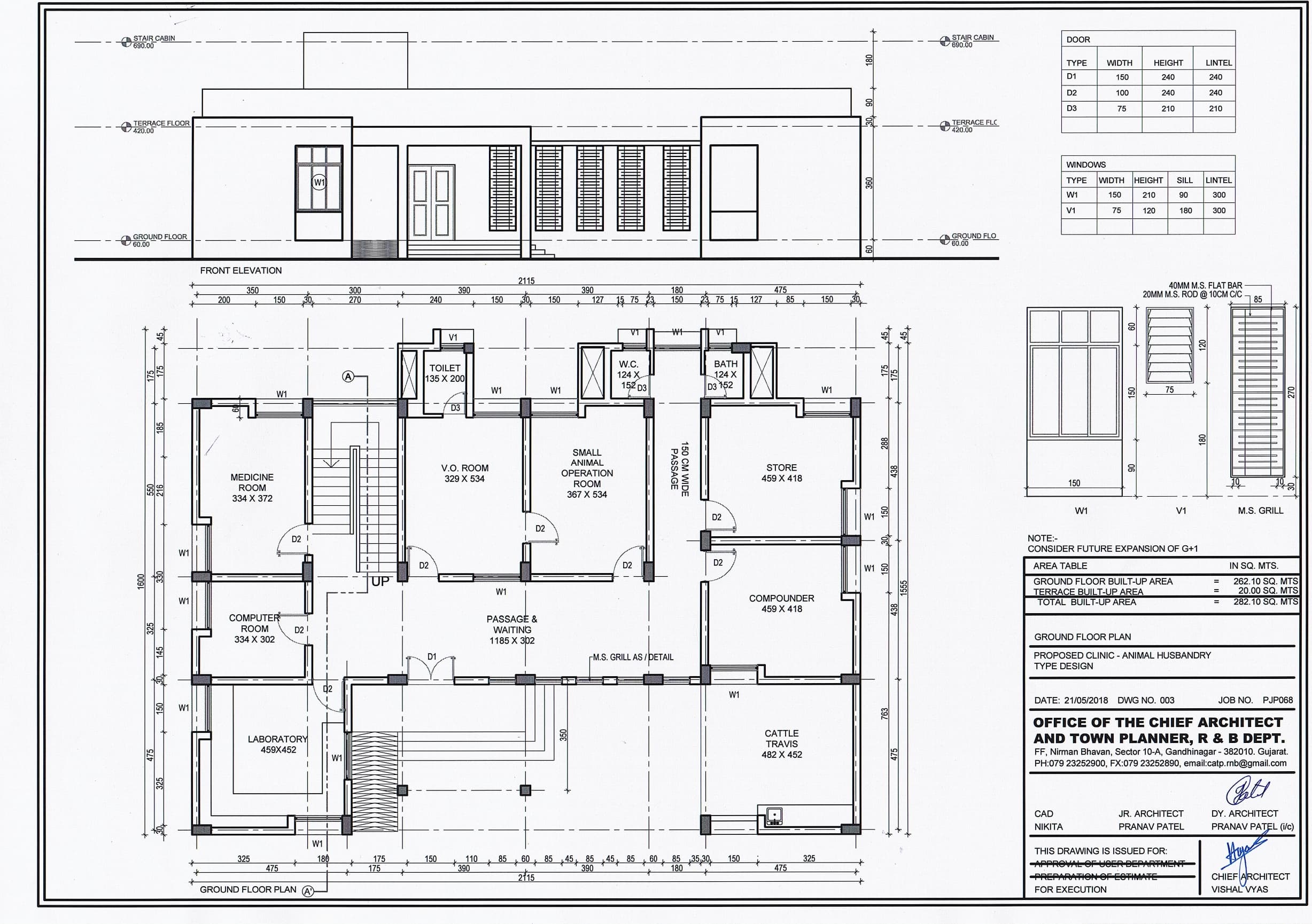
Notable Projects
Explore a selection of my notable projects that showcase my expertise and commitment to excellence in structural engineering.

Proposed G+2 Residential Unit for Bhikhubhai Patel
Located at Dumas, Surat with a total built-up area of 2,686 sq. ft.

G+3 Residential Unit with Design Core
Proposed G+3 residential unit in Nandanvan Society, Jahangirpura, Surat.

G+2 Residential Unit with Vertex Design Studio
Proposed G+2 residential unit in Sachin, Surat with Vertex Design Studio.


Industrial Units for ABS Construction
Multiple industrial units for ABS Construction across Sachin, Bhestan, Navsari, and Gabhani.

Residential Unit for Rahul Vishwakarma
Residential unit project for Rahul Vishwakarma in Dhanbad, Bihar.

G+1 Residential Unit with AB Construction
G+1 residential unit with AB Construction at Amroli, Surat.

G+2 Residential Unit for Kirit Parmar
G+2 residential unit for Kirit Parmar at King Rose Bungalows, Jahangirpura.

G+2 Residential Unit for Jignesh Gamit
Proposed G+2 residential unit for Jignesh Gamit in Vyara.

G+4 Industrial at Pramukh ABC Ambro Park Phase 1
G+4 industrial building at Pramukh ABC Ambro Park Phase 1, Kosad, Surat.

G+4 Industrial at Pramukh ABC Ambro Park Phase 2
G+4 industrial building at Pramukh ABC Ambro Park Phase 2, Kosad, Surat.

Param Aanand High Rise Towers
"Param Aanand" - 2 Basements + G+14 storey 2BHK high-rise towers at Kamrej, Surat.

Interior Design Estimate at SVG
Detailed estimate for interior design project at SVG, GIDC Road, Ankleshwar.

G+2 Residential Unit for Priyank Patel
Proposed G+2 residential unit at Apna Ghar Society, Rander Road, Surat.

Proposed G+3 residential unit for yogesh bhai patel
Proposed G+2 residential unit at dev ashish SOC., Mora bhagal, Surat.

G+2 Residential Unit for Chinmay Shah
Proposed G+2 residential unit for Chinmay Shah in Gandevi, Navsari.

G+2 Residential Unit with Vertex Design Studio - Ankleshwar
Proposed G+2 residential unit with Vertex Design Studio at GIDC, Ankleshwar.
Residential Unit for Chirag Khatri
Proposed residential unit for Chirag Khatri at Bamroli, Surat.
Steel Audit - Central Business Hub
Structure steel audit of Central Business Hub for Vinayak Associates at Parle Point, Surat.
Residential Unit at Yasin Nagar
Construction of residential unit at Yasin Nagar, Udhna Sachin Main Road, Unn Surat.
Box Culvert, Anganwadi, Box Drain, Yoga Sheds
Construction of box culvert, Anganwadi, box drain, and yoga sheds for Ankleshwar Nagar Palika.
2023-24 Vikas Yojna - School Rooms (Atharva Design)
Design of school rooms (6+5+3 units) for Atharva Design Services in Uchhal, Nizar, Kukarmunda.
2024-25 Vikas Yojna - School Rooms (Atharva Design)
Design of school rooms for Atharva Design Services under 2024-25 Vikas Yojna.
G+4 Residential Unit with Ar. Alpesh Wala
Proposed G+4 residential unit in Mota Varachha, Godadra, Surat with Architect Alpesh Wala.
G+3 Commercial Unit at Vijay Laxmi Vatika
G+3 commercial project at Vijay Laxmi Vatika, Mora, Surat.